Комплекс состоит из двух отдельно стоящих домов с паркингом, кладовыми и коммерческими помещениями.
Стиль архитектурного решения и цветовая гамма наружной отделки позволяют органично вписаться в окружающую архитектуру облика города и района. Жилой комплекс оснащен современными спортивными, детскими и игровыми площадками, имеет закрытую территорию. Проектом предусмотрены въезды на придомовую территорию с ул. Черняховского и Ладыгина, предлагая вариантность выезда на городскую трассу.
ЖК на Черняховского реализуются в соответствии с Федеральным законом «Об участии в долевом строительстве многоквартирных домов» № 214-ФЗ. Проектное финансирование АО «Банк ДОМ.РФ», эскроу-счета.
2 дома по 25 этажей
от 33 до 55 кв.м
1 и 2-комнатные квартиры
свободная планировка квартир
площадка для отдыха детей и взрослых
развитая инфраструктура
двор без машин
коммерческие помещения
Расположение
Все важнейшие инфраструктурные объекты рядом с жилым комплексом
2
минуты
до остановки «Черняховского»
3
минуты
до гипермаркета «САМБЕРИ»
7
минут
до ТЦ «ЛАДЫГИНА»
5
минут
до Парка Минного городка
20
минут
до центра города
Инфраструктура
Район, в котором ведется строительство Жилого комплекса, обжит давно. Здесь есть все, что может потребоваться: детские сады, поликлиника, аптеки, школы.
Большой популярностью среди местных жителей пользуется супермаркет «САМБЕРИ» и Торговый центр, который находится в шаговой доступности от дома.
В жилом комплексе на Черняховского предусмотрены различные планировки квартир 1 и 2 комнат. Площадь квартир варьируется от 33 кв.м до 54,6 кв.м.
Квартиры реализуются без отделки, что дает вам возможность воплотить свои дизайнерские идеи и создать уютное пространство по своему вкусу.
1-комнатные квартиры
от 33 до 45,9 кв.м
Площадь 33 кв.м
Площадь 45,9 кв.м
2-комнатные квартиры
от 54,8 до 54,6 кв.м
Площадь 54,8 кв.м
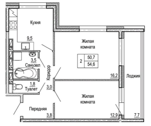
Площадь 54,6 кв.м
Двор без машин
278
парковочных мест
от 13,3 до 22,6 кв.м
На территории жилого комплекса «на Черняховского» предусмотрен собственный подземный паркинг.
Вам больше не придётся искать, где оставить автомобиль.
Спуститься к машине можно будет на лифте с любого этажа.
Кладовые
123 кладовки от 4 до 20 кв.м
Кладовые в нашем ЖК – это место, где вы можете хранить ваши вещи, не засоряя пространство в квартире: от спортивного инвентаря до сезонной одежды.
Ваши велосипеды и туристическое снаряжение будут надежно защищены от внешних воздействий, а детские игрушки и коляски будут всегда под рукой.
Коммерческие помещения
свободного назначения от 40,6 до 298,4 кв.м
На первом этаже жилого комплекса предусмотрены коммерческие помещения разной площади и под любые сферы бизнеса. Помещение свободного назначения с отдельным входом, удобное расположение и стабильный поток клиентов - все что нужно для создания бизнеса.